|
GFRC CorniceDrawing of GFRC Cornice |
|
|
|
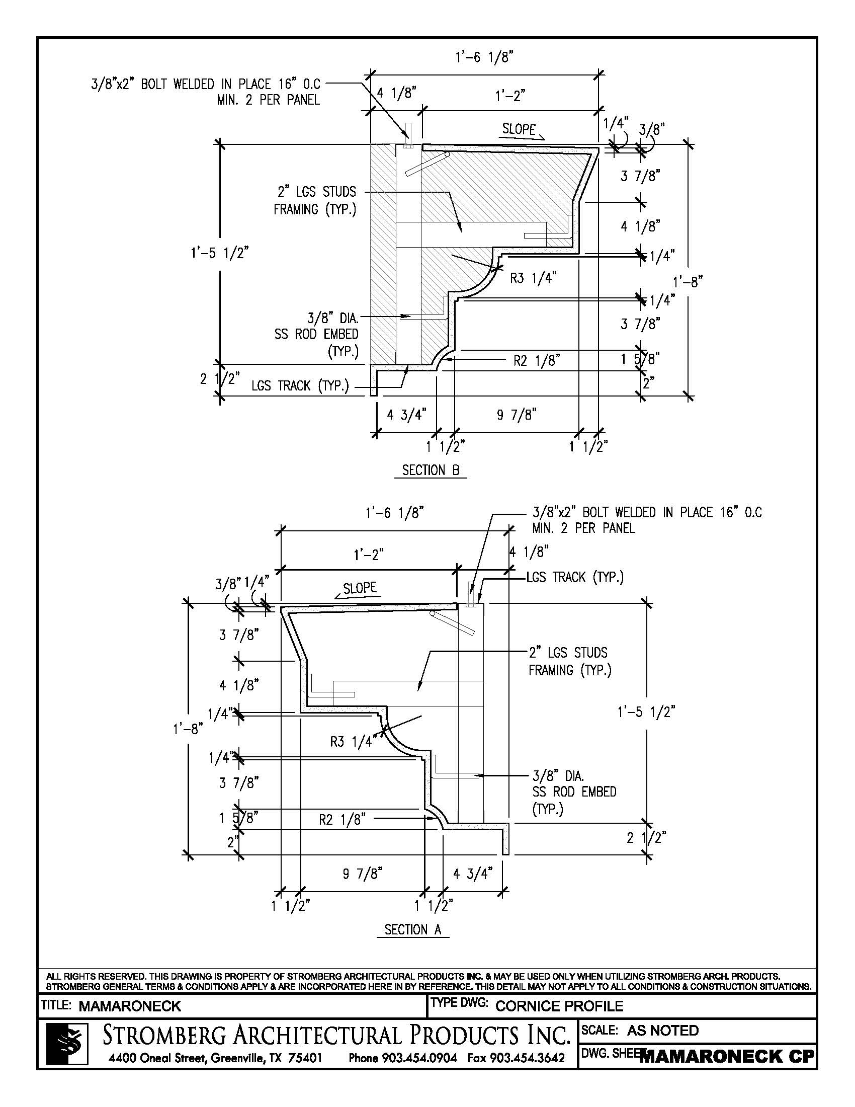
GFRC Cornice ProfileDrawing of GFRC Cornice Profile |
|
|
|
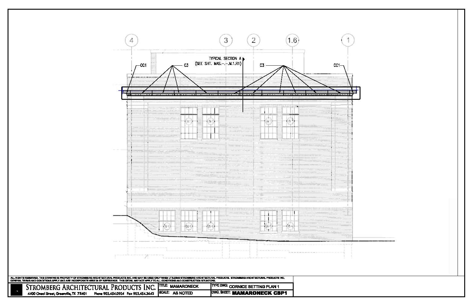
GFRC Cornice Setting Plan 1Drawing of GFRC Cornice Setting Plan 1 |
|
|
|
GFRC Cornice Setting Plan 2Drawing of GFRC Cornice Setting Plan 2 |
|
|
|
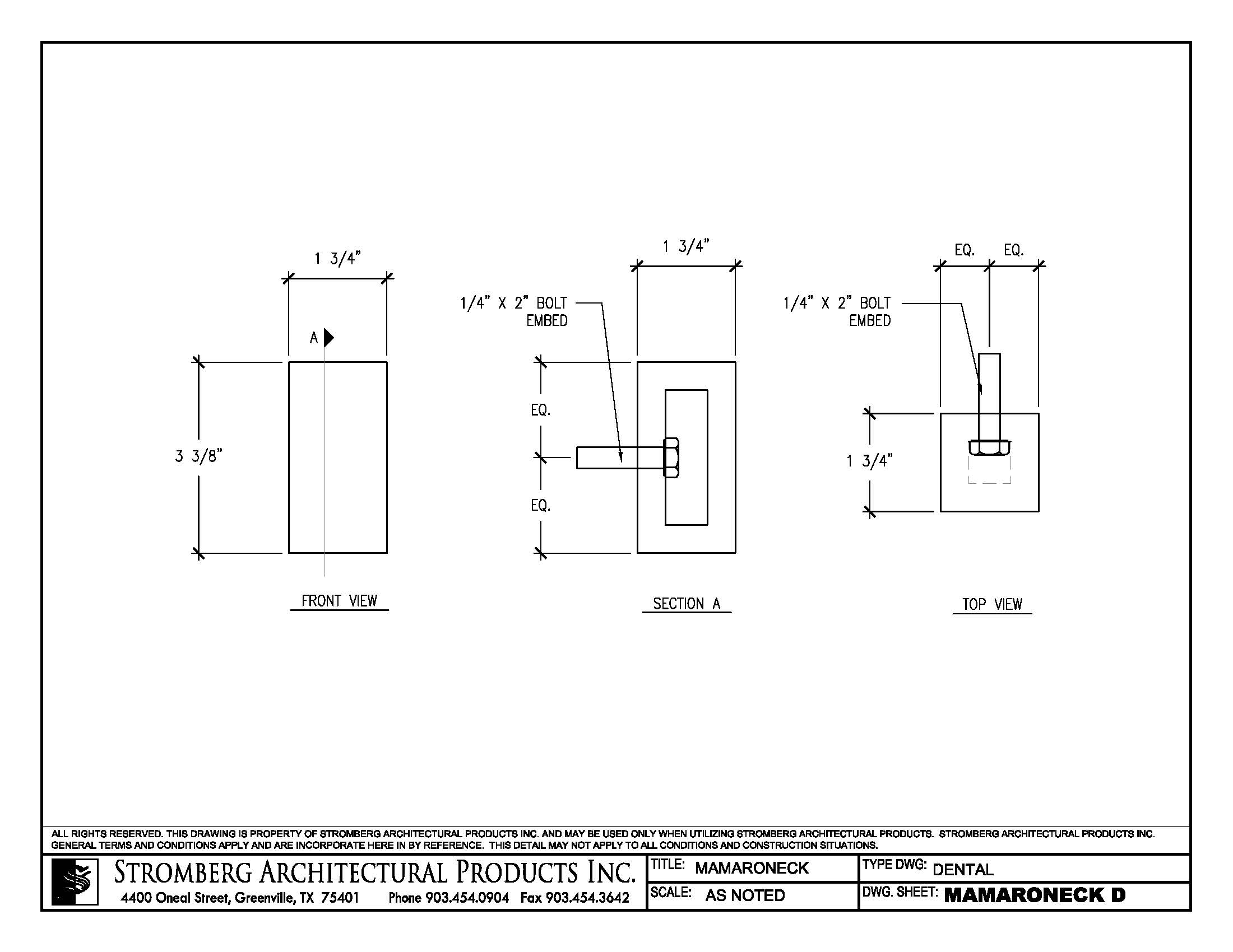
GFRC DentilDrawing of GFRC Dental |
|
|