home
about
contact
sitemap
Search
home
products
projects
cad
samples
specs
materials
restoration
applications
projects
Project
Download
Large View
GFRC Pilaster Segment
Drawing of GFRC Pilaster Segment
Large View
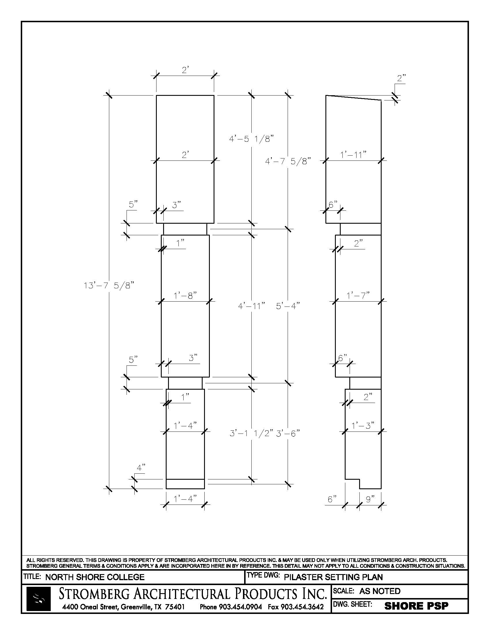
GFRC Pilaster Setting Plan
Drawing of GFRC Pilaster Setting Plan