home
about
contact
sitemap
Search
home
products
projects
cad
samples
specs
materials
restoration
applications
projects
Project
Download
Large View
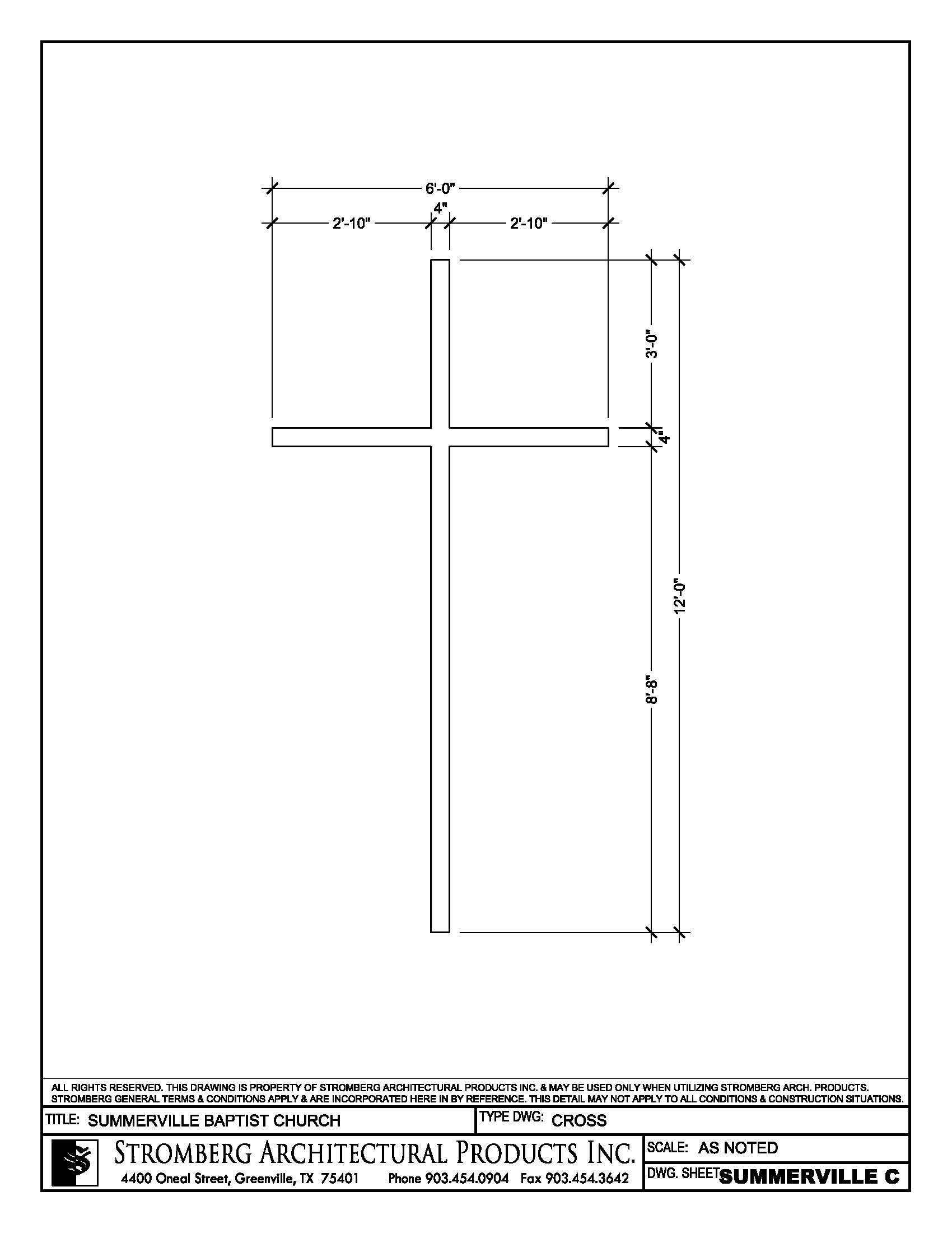
GFRG Cross
Drawing of GFRG Cross